Cover Photo

To develop Erindale heritage building

Cover Photo
About this cause

Adelaide Central School of Art (ACSA) is a unique independent, not-for-profit, single-focus art school.  We see first-hand the transformative impact of quality arts education on individuals. We believe art plays a central role in creating a richer, more connected world. Quality visual art starts with quality visual arts education.

Our independence is our strength but it leaves us vulnerable. Without additional financial assistance we rely primarily on income from student fees. Though we contribute significantly to South Australia's cultural capital we remain a self-funded organisation.

This is why your support is essential. It can help transform the lives of our future artists.

Your generous investment will provide support:

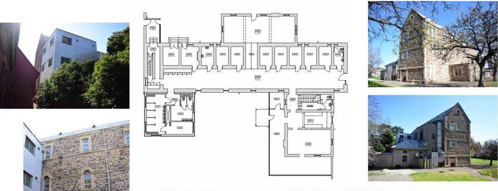
To revive and develop the decommission Erindale heritage building into a creative hub for local and visiting artists, students, graduates, lecturers, and curators, to encourage and support creative collaboration and education. 

Plans have been developed and were approved in March 2024. 

Adelaide Central School of Art is a registered Deductible Gift Recipient. All funds received before 30 June 2024 will directly support our capacity to support artists and every donation over $2 is tax-deductible.


Contact details

Adelaide Central School of Art PO Box 225
FULLARTON SA, 5063
0882997300

Are donations tax deductible?

Yes

Will I receive a receipt for my donation?

Yes, as soon as your donation is processed.

Cover Photo

To develop Erindale heritage building

Cover Photo

$6,594 raised so far

$6,594 raised so far

Back
1 2 3
$
0.00
You are donating to: To develop Erindale heritage building
A cause by: Adelaide Central School of Art
Back
2 3 4
$N/A.00
N/A
Separate multiple email addresses with a comma
Note: The organisation will still receive your details, but they will not be displayed publicly
By clicking 'Next', you agree to GiveNow's privacy policy and terms of use.
You are donating to: To develop Erindale heritage building
A cause by: Adelaide Central School of Art
Back
3
About this cause

Adelaide Central School of Art (ACSA) is a unique independent, not-for-profit, single-focus art school.  We see first-hand the transformative impact of quality arts education on individuals. We believe art plays a central role in creating a richer, more connected world. Quality visual art starts with quality visual arts education.

Our independence is our strength but it leaves us vulnerable. Without additional financial assistance we rely primarily on income from student fees. Though we contribute significantly to South Australia's cultural capital we remain a self-funded organisation.

This is why your support is essential. It can help transform the lives of our future artists.

Your generous investment will provide support:

To revive and develop the decommission Erindale heritage building into a creative hub for local and visiting artists, students, graduates, lecturers, and curators, to encourage and support creative collaboration and education. 

Plans have been developed and were approved in March 2024. 

Adelaide Central School of Art is a registered Deductible Gift Recipient. All funds received before 30 June 2024 will directly support our capacity to support artists and every donation over $2 is tax-deductible.

Recent Donations
Christopher Reid
696d
$516
Ustinia Dolgopol
728d
$103
leona woolcock
888d
$310
Ke Xing
949d
$62
Christopher Reid
1026d
$516
Tony List
1027d
$1,032
Anonymous
1028d
$500
Anonymous
1028d
$103
Anonymous
1029d
$250
Janis A Klavins
1030d
$103
Anonymous
1030d
$258
Genevieve Spalding
1030d
$516
Matthew Smith
1031d
$516
Anonymous
1031d
$103
Anonymous
1035d
$21
Virginia Beal
1036d
$258
Anonymous
1036d
$103
Anonymous
1037d
$103
Georgina Connell
1037d
$258
Jada McInnes
1041d
$10
Diana Jaquillard
1042d
$103
Ian Henschke
1042d
$103
Elinor Alexander
1043d
$516
Jane Lemon
1043d
$258
Ustinia Dolgopol
1043d
$206

Contact details

Adelaide Central School of Art PO Box 225
FULLARTON SA, 5063
0882997300

Are donations tax deductible?

Yes

Will I receive a receipt for my donation?

Yes, as soon as your donation is processed.